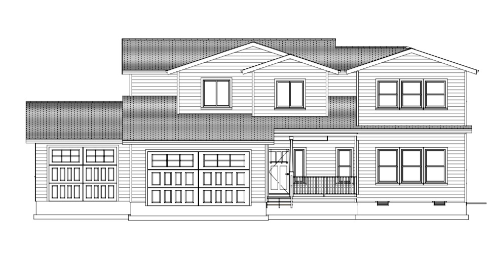
We have settled on plans after 6 years of designing them. As the final plans matured there was much frustration and excitement, we put the plans away many, many times only to pull them out again and reassess them. Over the years the list of people involved in helping Jane and I come to our final plans grew. The design stage is crazy. You don’t know how a room will feel or what it will be like until it is built. The tape measure was out a lot at our friends homes. We had everyone giving advice. Everything from make the girls room big, more rooms, build a master for you and Jane, boys rooms can be as small as a small food pantry and they’d do fine, and much, much more. We soaked up the input and settled on what we are about to start building. We are thankful our friends and family who helped participate and give input into what will become our new home.
Before


After



